• Home
  • Lage
  • Fläche
  • Bebauung
  • Fotos
  • Kontakt
  • Impressum
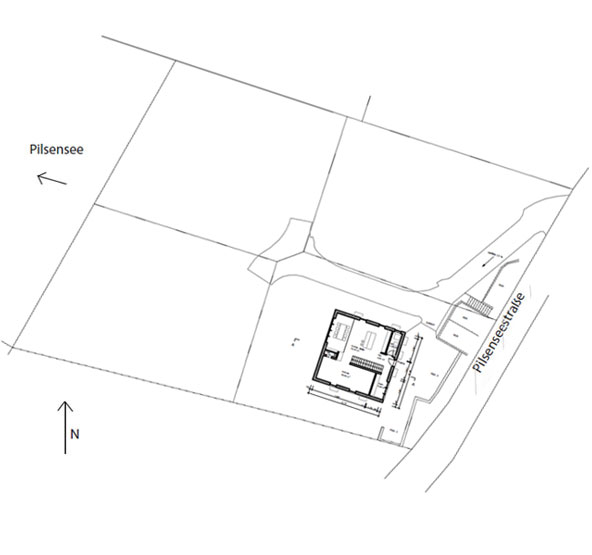
Romulus Areal GmbH präsentiert: Grundstück am Pilsensee mit Seeblick
  • Home
  • Lage
  • Fläche
  • Bebauung
  • Fotos



Traumgrundstück mit Seeblick


Ein genehmigter Vorbescheid für eine Bebauung mit 4 Einfamilienhäusern liegt bereits vor. Dieses Exposé zeigt einen Planungsvorschlag von BRarchitekten. Die endgültige Bauausführung ist individuelle Entscheidung des Käufers. Jedes Haus verfügt über derzeit ca. 180 qm Wohnfläche und ca. 90 qm Nutzfläche!