• Home
  • Lage
  • Fläche
  • Bebauung
  • Fotos
  • Kontakt
  • Impressum
Romulus Areal GmbH präsentiert: Grundstück am Pilsensee mit Seeblick
  • Home
  • Lage
  • Fläche
  • Bebauung
  • Fotos

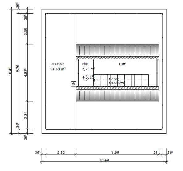
Grundriss DG

Die Dachterrasse verfügt über einen unverbaubaren Blick auf den schönen Pilsensee.

Die Lounge ist ein Ort der Ruhe.

  • Grundriss Untergeschoss  
  • Grundriss Erdgeschoss  
  • Grundriss Obergeschoss  
  • Grundriss Dachgeschoss