• Home
  • Lage
  • Fläche
  • Bebauung
  • Fotos
  • Kontakt
  • Impressum
Romulus Areal GmbH präsentiert: Grundstück am Pilsensee mit Seeblick
  • Home
  • Lage
  • Fläche
  • Bebauung
  • Fotos

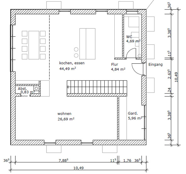
Grundriss EG

Die Wohnebene lässt keine Wünsche offen.

Die Highlights: große Garderobe, Küchenblock, zweigeschossiger Luftraum im Bereich des Esstisches, Galerie, offener Kamin als Raumteiler zentral im Raum.

  • Grundriss Untergeschoss  
  • Grundriss Erdgeschoss  
  • Grundriss Obergeschoss  
  • Grundriss Dachgeschoss